◆ 该机是我厂与化工部沈阳化工研究院,在消化和吸收国外的先进设备和技术的基础上,开发的用来干燥膏粘状, 滤饼状和、热敏性物料的新型干燥设备。本厂设有实验样机,可为用户进行各种物料干燥实验,提供数据和协助选型。
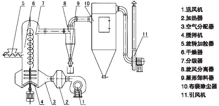
◆ 热空气切线进入干燥器底部,在搅拌器带动下形成强有力的旋转风场。膏状物料由螺旋加料器进入干燥器内,在高速旋转搅拌桨的强烈作用下,物料受撞击、磨擦及剪切的作用下得到分散,块状物料迅速粉碎,与热空气充分接触、受热、干燥。脱水后的干物料随热气流上升,分级环将大颗粒截留,小颗粒从环中心排出干燥器外,由旋风分离器和除尘器回收,未干透或大块物料受离心力作用甩向器壁,重新落到底部被粉碎干燥。
![]() |
![]() |
| 闪蒸干燥机主塔 | 旋风除尘器 |
![]() |
![]() |
| 布袋除尘器 | 输送加料装置 |
◆ 旋流、流化、喷动及粉碎分级技术的有机结合。
◆ 设备紧凑,体积小,生产效率高,连续生产,实现了"小设备,大生产"。
◆ 干燥强度大,能耗低,热效率可达70%以上。
◆ 物料停留时间短,成品质量好,可用于热敏性物料干燥。
◆ 负压或微负压操作,密闭性好,效率高,消除环境污染。

[上一个: ZRFG系列正负两级气流干燥机 ]
[下一个: ZRLY系列燃油热风炉 ]
电话:0523-89103888
传真:0523-89103899
网址:www.touapp.com
邮箱:zr@jszrgz.com
地址:江苏省靖江市经济开发区